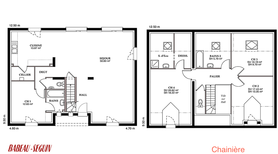
Chainière

Traditionnel

Etage

99 à 156 m2

3 à 4 chambres

Le modele Chainière

Splendide maison son familiale à étage avec une dalle béton à l’étage lui assurant un grand confort. Ses lucarnes de toit et les prestations de qualité qui lui sont attachées font de cette chainière une maison familiale par excellence. Longévité et Qualité !

Distribué par le constructeur:

Plans du modele

Vue 3d du modele

VISITE VIRTUELLE DU MODELE Chainière

×